Objectif : faire un premier projet rentable afin de pouvoir enchainer sur un deuxième projet rapidement.
La cliente étant expatrié en Suisse, nous avons piloté le projet entièrement à distance.

ÉTAPE 1 : RECHERCHE DU BIEN DANS UN QUARTIER STRATÉGIQUE




Situé Rue Montolieu, dans le 2e arrondissement de Marseille, ce bien est une belle opportunité d'investissement car il est idéalement placé et le secteur reste soutenu en terme de demande locative.
L'immeuble est situé à 500 mètres du métro Colbert (5 min à pieds), et de nombreuses écoles privés sont à proximités (ESDAC, IFSI, Albert School, Intuit Lab).
Le bien est situé au 3ème étage sur 5. L'immeuble est en train de se gentrifier avec une objectif de prise de valeur sur un l'horizon 5 / 10 ans.
Plusieurs options de location sont possible tel que ; colocation, location courte durée, mixte (bail mobilité + loc saisonnière sur la période estivale).




Situé Rue Montolieu, dans le 2e arrondissement de Marseille, ce bien est une belle opportunité d'investissement car il est idéalement placé et le secteur reste soutenu en terme de demande locative.
L'immeuble est situé à 500 mètres du métro Colbert (5 min à pieds), et de nombreuses écoles privés sont à proximités (ESDAC, IFSI, Albert School, Intuit Lab).
Le bien est situé au 3ème étage sur 5. L'immeuble est en train de se gentrifier avec une objectif de prise de valeur sur un l'horizon 5 / 10 ans.
Plusieurs options de location sont possible tel que ; colocation, location courte durée, mixte (bail mobilité + loc saisonnière sur la période estivale).
ÉTAPE 2 : ACHAT DU BIEN EN L'ÉTAT
Les parties communes sont propres, la façade côté cours vient de d'être ravalée, il reste à prévoir les balcons et un ravalement de la façade côté rue (à prévoir à horizon 2/5 ans).
L'appartement était en très mauvais état et nécessitait des travaux lourd.
Il y avait un troue dans le plancher et l'appartement avait été squatté...
L'idée de base était de créer de la valeur en rénovant entièrement le bien en optimisant les pièces et en conservant les volumes.

ÉTAPE 2 : ACHAT DU BIEN EN L'ÉTAT
Les parties communes sont propres, la façade côté cours vient de d'être ravalée, il reste à prévoir les balcons et un ravalement de la façade côté rue (à prévoir à horizon 2/5 ans).
L'appartement était en très mauvais état et nécessitait des travaux lourd.
Il y avait un troue dans le plancher et l'appartement avait été squatté...
L'idée de base était de créer de la valeur en rénovant entièrement le bien en optimisant les pièces et en conservant les volumes.

ÉTAPE 3 : DISCUTER DE LA
TRANSFORMATION DU BIEN
Le projet était ambitieux, réussir à créer un 3 pièces confortable et fonctionnel dans un espace de 47m2.
L'objectif est d'avoir un appartement modulable et adaptable en fonction des besoins.
En effet, l'idée était d'avoir deux chambres (parentale et enfant) et de laisser également la possibilité de transformer le salon en 3ème chambre en cas de besoin (exemple : location courte durée ou colocation).
Il était important pour la cliente de conserver un espace de vie qui soit agréable avec notamment une vrai cuisine équipée.
ÉTAPE 3 : DISCUTER DE LA TRANSFORMATION DU BIEN
Le projet était ambitieux, réussir à créer un 3 pièces confortable et fonctionnel dans un espace de 47m2.
L'objectif est d'avoir un appartement modulable et adaptable en fonction des besoins.
En effet, l'idée était d'avoir deux chambres (parentale et enfant) et de laisser également la possibilité de transformer le salon en 3ème chambre en cas de besoin (exemple : location courte durée ou colocation).
Il était important pour la cliente de conserver un espace de vie qui soit agréable avec notamment une vrai cuisine équipée.
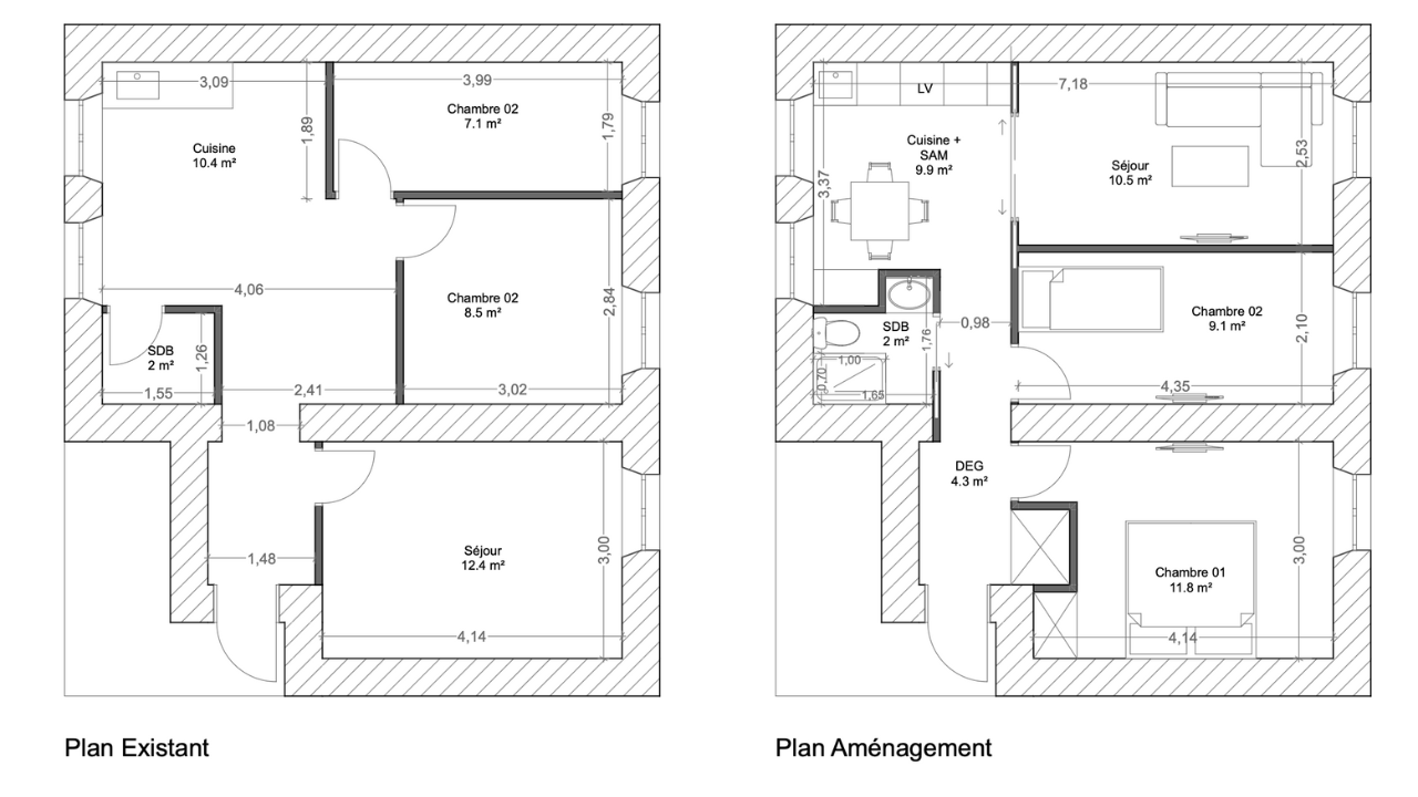
ÉTAPE 4 : LA TRANSFORMATION, TRAVAUX & AMEUBLEMENT
L'objectif de ces travaux était principalement d'agrandir et de modifier la disposition des pièces, en optimisant au mieux les espaces. Pour cela il a fallu déplacer des cloisons qui avec le temps sur les bâtiments anciens deviennent des murs porteurs par principe.
Nous avons donc fait appel à un bureau d'étude afin de garantir à la cliente la bonne réalisation des ouvrages et de rassurer le syndic sur la bonne réalisation des ouvertures. Le bureau d'étude a donc réaliser son rapport et nous avons lancer pu présenter l'étude technique d'avant-projet à la cliente.
Avec notre architecte voici la nouvelle configuration qui a été proposée à la cliente afin de répondre aux objectifs fixés d'optimisation des espaces avec une meilleure circulation tout en respectant un budget travaux serré.
Les principales modifications :
✓ Déplacement et ré-alignement des cloisons afin d'agrandir la petite chambre et garantir les 9m2 obligatoire
✓ Reprise complète de la cuisine et du mur, création des arrivées d'eau, cuisine linéaire de 240cm
✓ Création d'un placard dédié pour stocker le linge et les équipements
✓ Transformation du séjour en grande chambre avec une porte à galandage
✓ Salle de bain détruite et repensée en optimisant chaque cm2 avec des matériaux adaptés
✓ Ragréage et pose d'un joli parquet et d'un carrelage dans la salle d'eau
✓ Reprise complète du système électrique avec pose d'un nouveau tableau électrique Legrand
✓ Divers : changement des volets, porte d'entrée 3 points de sécurités, convecteurs à inertie sèche, et création d'un dressing sur mesure en tête de lit.




La cliente a souhaité s'impliquer dans l'ameublement et a donc choisi elle-même la décoration de son appartement, nous avons conseillé sur l'harmonisation, la robustesse du mobilier, l'aspect fonctionnel et jolie.
La cliente à choisi une inspiration épurée et moderne de chez IKEA.
Au total, elle a réussi à faire un ameublement complet (literie compris) pour moins de 7.000€.
Nos équipes ont assurés le montage des meubles.
ÉTAPE 4 : LA TRANSFORMATION,
TRAVAUX & AMEUBLEMENT
L'objectif de ces travaux était principalement d'agrandir et de modifier la disposition des pièces, en optimisant au mieux les espaces. Pour cela il a fallu déplacer des cloisons qui avec le temps sur les bâtiments anciens deviennent des murs porteurs par principe.
Nous avons donc fait appel à un bureau d'étude afin de garantir à la cliente la bonne réalisation des ouvrages et de rassurer le syndic sur la bonne réalisation des ouvertures. Le bureau d'étude a donc réaliser son rapport et nous avons lancer pu présenter l'étude technique d'avant-projet à la cliente.
Avec notre architecte voici la nouvelle configuration qui a été proposée à la cliente afin de répondre aux objectifs fixés d'optimisation des espaces avec une meilleure circulation tout en respectant un budget travaux serré.
Les principales modifications :
✓ Déplacement et ré-alignement des cloisons afin d'agrandir la petite chambre et garantir les 9m2 obligatoire
✓ Reprise complète de la cuisine et du mur, création des arrivées d'eau, cuisine linéaire de 240cm
✓ Création d'un placard dédié pour stocker le linge et les équipements
✓ Transformation du séjour en grande chambre avec une porte à galandage
✓ Salle de bain détruite et repensée en optimisant chaque cm2 avec des matériaux adaptés
✓ Ragréage et pose d'un joli parquet et d'un carrelage dans la salle d'eau
✓ Reprise complète du système électrique avec pose d'un nouveau tableau électrique Legrand
✓ Divers : changement des volets, porte d'entrée 3 points de sécurités, convecteurs à inertie sèche, et création d'un dressing sur mesure en tête de lit.
La cliente a souhaité s'impliquer dans l'ameublement et a donc choisi elle-même la décoration de son appartement, nous avons conseillé sur l'harmonisation, la robustesse du mobilier, l'aspect fonctionnel et jolie.
La cliente à choisi une inspiration épurée et moderne de chez IKEA.
Au total, elle a réussi à faire un ameublement complet (literie compris) pour moins de 7.000€.
Nos équipes ont assurés le montage des meubles.

ÉTAPE 5 : PROFITER DU AVANT / APRÈS
Après plus de 250 heures de travail de travail acharné, de planification minutieuse et de créativité débordante, nous sommes fiers de vous présenter le résultat final de ce projet.



ÉTAPE 5 : PROFITER DU AVANT / APRÈS
Après plus de 250 heures de travail de travail acharné, de planification minutieuse et de créativité débordante, nous sommes fiers de vous présenter le résultat final de ce projet.



ÉTAPE 6 : MISE EN LOCATION VIA NOTRE AGENCE PARTENAIRE
L'appartement a été confié à notre conciergerie partenaire pour une location en courte durée entièrement déléguée. Nous visons une location à la nuitée à 70€ net propriétaire.


Nous sommes là pour vous aider à naviguer dans le monde complexe de l'immobilier et à trouver l'opportunité idéale qui vous permettra de générer des revenus locatifs stables à long terme. Faites confiance à notre expertise et contactez-nous dès aujourd'hui pour commencer votre carrière d'investisseur.
Abonnez-vous pour recevoir chaque mois un bien rentable clé en main et les meilleures actus immo.
Copyright © 2025 TERAMATA - Tous droits réservés - Politique de confidentialité - CGV - Mentions légales - Médiateur à la consommation
Nous sommes là pour vous aider à naviguer dans le monde complexe de l'immobilier et à trouver l'opportunité idéale qui vous permettra de générer des revenus locatifs stables à long terme. Faites confiance à notre expertise et contactez-nous dès aujourd'hui pour commencer votre carrière d'investisseur.
Abonnez-vous pour recevoir chaque mois un bien rentable clé en main et les meilleures actus immo.
Copyright © 2025 TERAMATA - Tous droits réservés - Politique de confidentialité - CGV - Mentions légales - Médiateur à la consommation